Omschrijving
Met genoegen stellen wij deze prachtige Betuwse woning aan je voor, compleet met een veelzijdig bijgebouw dat dienst doet als kantoor, hobbyruimte en eventueel als gastenverblijf.
Dit toevluchtsoord ligt op slechts acht minuten van de snelweg A2 en biedt een panoramisch uitzicht over de uitgestrekte landerijen. Een betoverende plek, aan de rand van het dorp, waar je als bewoner het hele jaar door geniet van vrijheid en privacy.
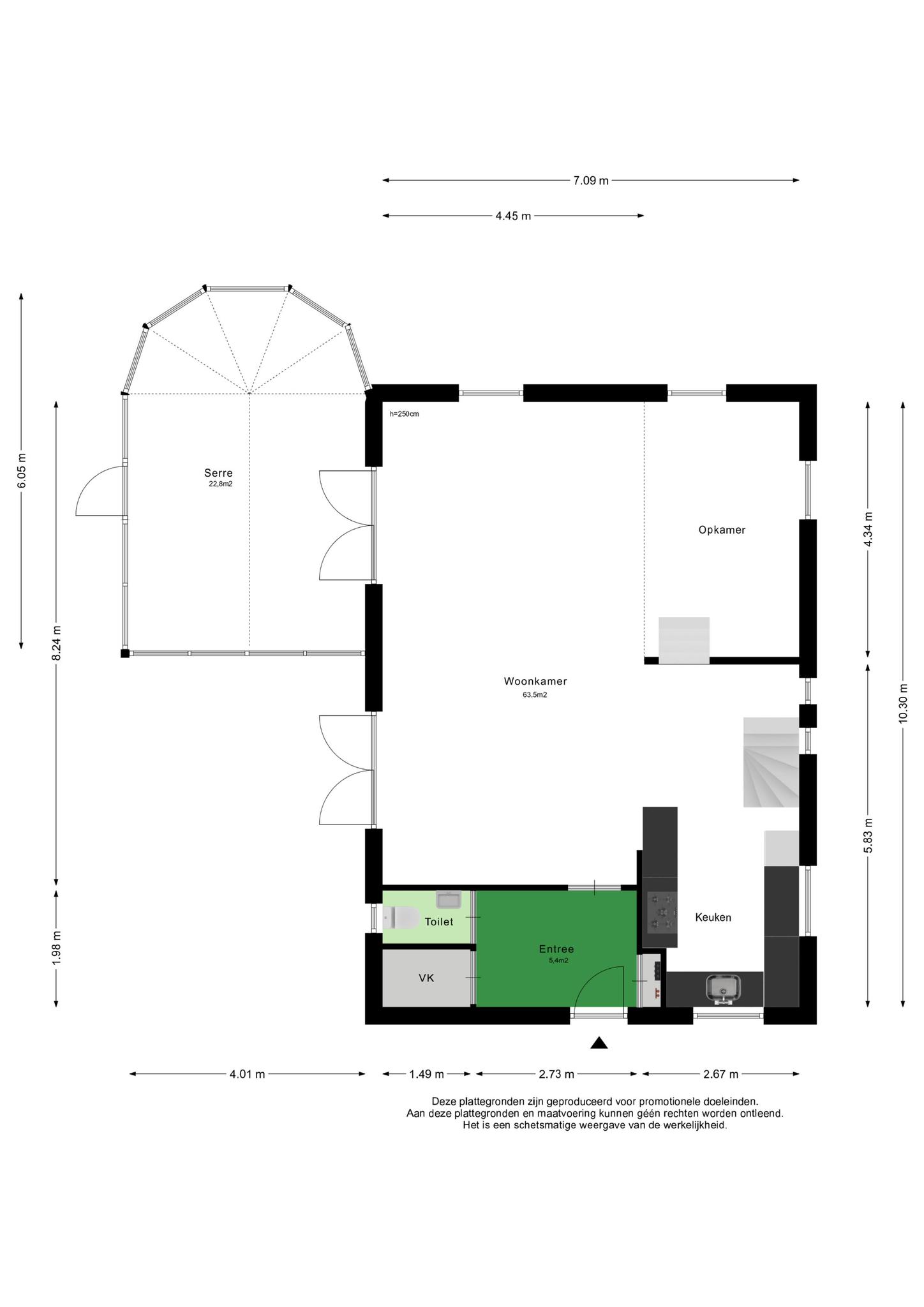
Op de begane grond tref je naast de open opkamer met kelder, een ruime woonkamer, een royale open keuken en een heerlijke serre met openslaande deuren naar de tuin. Binnen en buiten vloeien naadloos in elkaar over. De tuin is optimaal gepositioneerd op het zuidwesten.
Indeling:
Na een warme ontvangst in de ruime hal betreed je de woonkamer, waar de open indeling indruk maakt. Aan de voorzijde van de intieme woonkamer is een speksteenkachel voor heerlijke warmte tijdens de winterdagen. De openslaande deuren aan de zijkant leiden je naar de tuin met een verfrissend zwembadje.
De luxe open Siematic keuken is voorzien van een granieten werkblad, Quooker, een Boretti fornuis met dubbele oven, een fry-top, een afzuigkap, vaatwasser, royale dubbele koel/vrieskast met ijsblokjesmachine en een zuiverwaterkraan. De aangebouwde serre met openslaande deuren biedt een aparte ruimte om te ontspannen en te genieten van de rust en het groen om je heen.
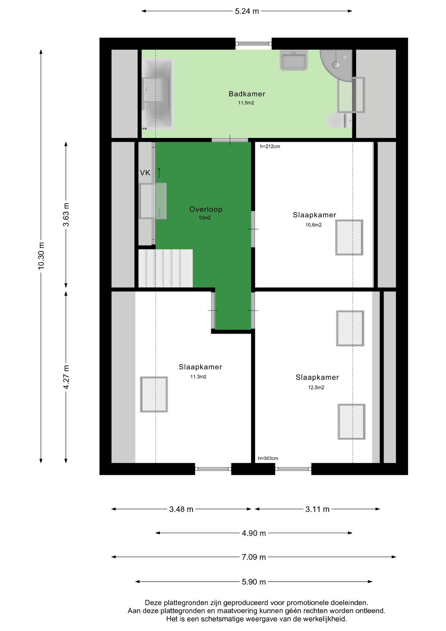
Op de bovenverdieping zijn drie prachtige, lichte slaapkamers waarvan er twee voorzien zijn van moderne airconditioning. De ruime badkamer biedt eveneens comfort.
Het in spouw gebouwde bijgebouw herbergt een werkplaats, kitchenette met kokend waterkraan en toilet op de begane grond. De ruime en lichte bovenetage is voorzien van houten vloer en airconditioning. Dit veelzijdige bijgebouw kan dienen als zorgwoning, praktijkruimte, kantoor aan huis of gastenverblijf.
Bij dit charmante huis hoort een extra perceel van ongeveer 180 m² wat wordt gehuurd van de gemeente. Dit perceel kan je erbij kopen. Het totale perceel wordt dan circa 900 m².
Bijzondere kenmerken:
– Gewilde locatie;
– Ruime parkeergelegenheid;
– Rust en privacy;
– Multifunctioneel bijgebouw;
– Veranda;
– Zwembad;
– Sfeervolle woonkamer met openslaande deuren;
– Speksteenkachel;
– Riante serre met haard;
– Vloerverwarming;
– Opkamer;
– Kelder;
– Vloerisolatie;
– Dakisolatie;
– Muurisolatie;
– Dubbele beglazing;
– Airconditioning;
– Aanwezige laadpaal;
– Glasvezel.
Wij nodigen je van harte uit om deze prachtige woning en bijzondere plek zelf te komen ervaren!
Kenmerken
- Status Beschikbaar
- Prijs € 935.000 k.k.
- Type woning Woonhuis
- Woonoppervlakte 195 m2
- Totaal aantal kamers 5
- Aantal slaapkamers 3
- Aantal badkamers 1
- Badkamer faciliteiten Ligbad, toilet, douche, dubbele wastafel
- Inhoud 795 m3
- Oppervlakte gebouw gebonden buitenruimte 25 m2
- Perceel oppervlakte 715 m2
- Bouwvorm Bestaande bouw
- Daktype Mansarde dak
- Verdiepingen 4
- Eigendom type Volle eigendom, volle eigendom
- Bestemming huidig Woonruimte
- Huidig gebruik Woonruimte
- Speciale kenmerken Gedeeltelijk gestoffeerd
- Bouwjaar 1902
- Energie label D
- Liggingen Aan rustige weg, vrij uitzicht
- Onderhoudswaardering (binnen) Goed
- Aangeboden sinds 2023-09-01
- Aanvaarding In overleg
- Hoofdtuin type Tuin rondom
- Tuin Tuin rondom
- Quality garden Verzorgd
- Isolatie types Dakisolatie, muurisolatie, vloerisolatie, dubbel glas
- Central heating boiler Ja
- CV ketel brandstof Gas
- CV ketel eigendom Eigendom
- Warm water types Cv ketel
- Voorzieningen Alarminstallatie, zwembad, airconditioning, rookkanaal, schuifpui, glasvezel kabel
- Garage Vrijstaand steen
- Parkeergelegenheden Op eigen terrein
De woning in beeld
Plattegrond
Niet gevonden wat je zocht?
Laat ons je helpen en plaats nu gratis een vrijblijvende zoekopdracht.
