Omschrijving
Heerlijk wonen aan een van de mooiste lanen van onze stad
In de populaire wijk Rauwenhof staat deze twee-onder-een-kapwoning met berging en verwarmd kantoor in de voormalige garage. De achtertuin op het westen maakt deze plek extra aantrekkelijk. Het huis beschikt over een prachtige L-vormige leefruimte, een luxe badkamer met een heerlijke inloopdouche en tal van andere extra’s!
De woning heeft daarnaast drie slaapkamers, een energielabel C, en bevindt zich op loopafstand van het winkelcentrum met al zijn voorzieningen. Op fietsafstand vind je uitgebreide dagelijkse voorzieningen, waaronder het stadscentrum, scholen, sportvelden, het treinstation en een ziekenhuis. De snelweg A15 is ook snel te bereiken.
De indeling is als volgt:
Begane grond:
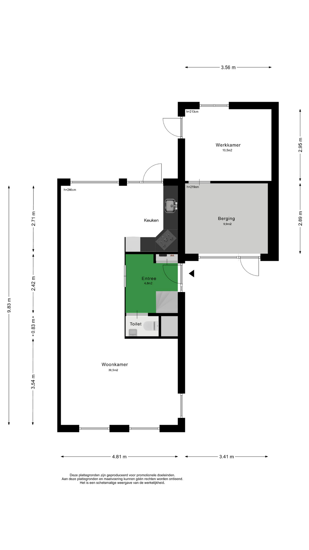
Entree, hal, meterkast, luxe toilet met fonteintje (uit 2023) en toegang tot de woonkamer. De L-vormige woonkamer is voorzien van een massieve houten vloer, gestuukt plafond en grote raampartijen die zorgen voor voldoende natuurlijk licht. Aan de achterzijde is er voldoende ruimte voor een grote eettafel.
De keuken is volledig uitgerust met apparatuur van Siemens/Pelgrim, inclusief een keramische kookplaat, afzuigkap, vaatwasser, combi-magnetron, koelkast en opbergruimte.
Eerste verdieping:
Overloop met toegang tot twee ruime slaapkamers. Eén slaapkamer bevindt zich aan de voorzijde en één aan de achterzijde. Beide slaapkamers hebben een parketvloer en houten dakramen. Er is ook bergruimte gecreëerd in knieschotten in beide slaapkamers. De moderne badkamer, vernieuwd in 2023, is voorzien van een inloopdouche, tweede toilet en vaste wastafel met meubel.
Tweede verdieping:
Voorzolder met de opstelling van de CV-ketel (uit 2015/eigendom) en de aansluitingen voor de wasmachine en droger. Hier bevindt zich ook een mooie derde slaapkamer met een groot dakraam.
Zowel de voortuin als de achtertuin zijn prachtig aangelegd. Aan de voorzijde is er een ruime oprit voor meerdere auto’s. De voormalige garage is opgedeeld in een berging en een kantoor, (beide van binnenuit) geïsoleerd.
De achtertuin biedt volledige privacy en is voorzien van elektrische zonwering. Dankzij de ideale ligging, kun je hier de hele dag genieten van de zon.
Ruime L-vormige woonkamer;
Superluxe badkamer;
Luxe toiletruimte;
Mogelijkheid voor kantoorruimte;
Massief houten vloer in de woonkamer;
Stuukplafond;
Energielabel C;
Goed onderhouden;
Ruime oprit;
Op loopafstand van het winkelcentrum;
Treinstation en ziekenhuis.
Kenmerken
- Status Onder bod
- Prijs € 425.000 k.k.
- Type woning Woonhuis
- Woonoppervlakte 109 m2
- Totaal aantal kamers 4
- Aantal slaapkamers 3
- Aantal badkamers 1
- Badkamer faciliteiten Toilet, wastafel, wastafelmeubel, inloopdouche
- Inhoud 416 m3
- Perceel oppervlakte 235 m2
- Perceel 1.960 m2
- Bouwvorm Bestaande bouw
- Daktype Zadeldak
- Verdiepingen 3
- Eigendom type Volle eigendom
- Bestemming huidig Woonruimte
- Huidig gebruik Woonruimte
- Bouwjaar 1984
- Energie label C
- Liggingen Aan rustige weg, in woonwijk
- Onderhoudswaardering (binnen) Goed
- Aangeboden sinds 2024-03-13
- Aanvaarding In overleg
- Hoofdtuin locatie West
- Hoofdtuin oppervlakte 90 m2
- Hoofdtuin type Achtertuin
- Tuin oppervlakte 235 m2
- Tuin Achtertuin, voortuin
- Quality garden Fraai aangelegd
- Opslag type Aangebouwd steen
- Opslag 2 m2
- Isolatie types Dakisolatie, vloerisolatie, grotendeels dubbelglas
- Central heating boiler Ja
- Boiler construction year 2015
- Boiler fuel type Gas
- Boiler property Eigendom
- Warm water types Cv ketel
- Voorzieningen Dakraam, glasvezel kabel
- Garage Aangebouwd steen
- Parkeergelegenheden Op eigen terrein
De woning in beeld




Plattegrond
Niet gevonden wat je zocht?
Laat ons je helpen en plaats nu gratis een vrijblijvende zoekopdracht.