Omschrijving
Te koop: Ruime vrijstaande woning met praktijkruimte en paardenfaciliteiten op een perceel van 2.510 m², nabij het charmante dorp Ingen – volledig geschikt voor gelijkvloers wonen.
Deze prachtige vrijstaande woning met maar liefst 187 m² woonoppervlakte is gelegen op een rustige, landelijke locatie aan een sfeervol weggetje met vrij uitzicht. De woning biedt alles voor wie op zoek is naar ruimte, rust en comfort. Met het royale perceel, de stallen en weide is het een ideale plek voor dierenliefhebbers of voor wie geniet van een ruimtelijk buitenleven. De woning is perfect ingericht voor comfortabel gelijkvloers wonen.
Volledig geïsoleerd en duurzaam met zonnepanelen
De woning is goed geïsoleerd, wat bijdraagt aan een energiezuinig en comfortabel leefklimaat. Bovendien zijn er maar liefst 16 zonnepanelen geïnstalleerd, wat zorgt voor een lagere energierekening en een duurzame levensstijl.
Comfortabel wonen op de begane grond
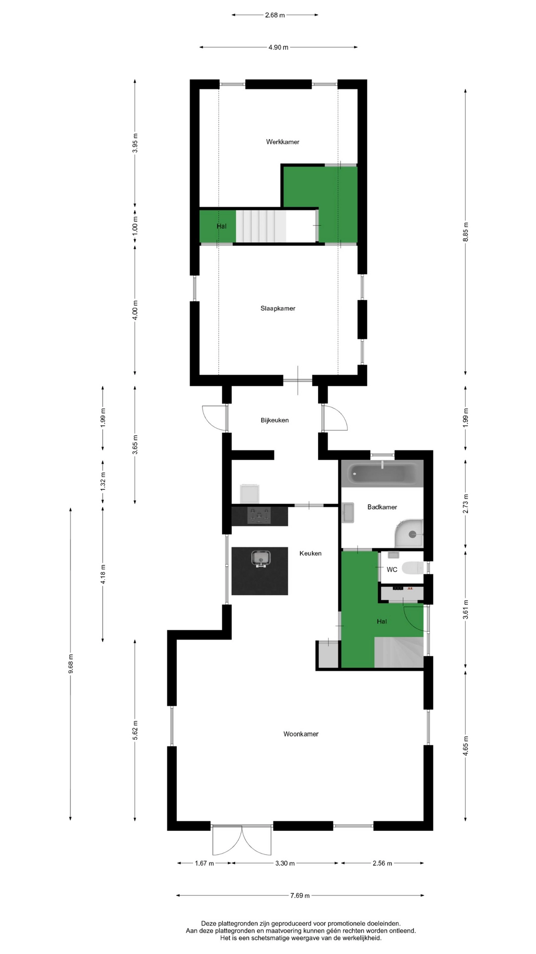
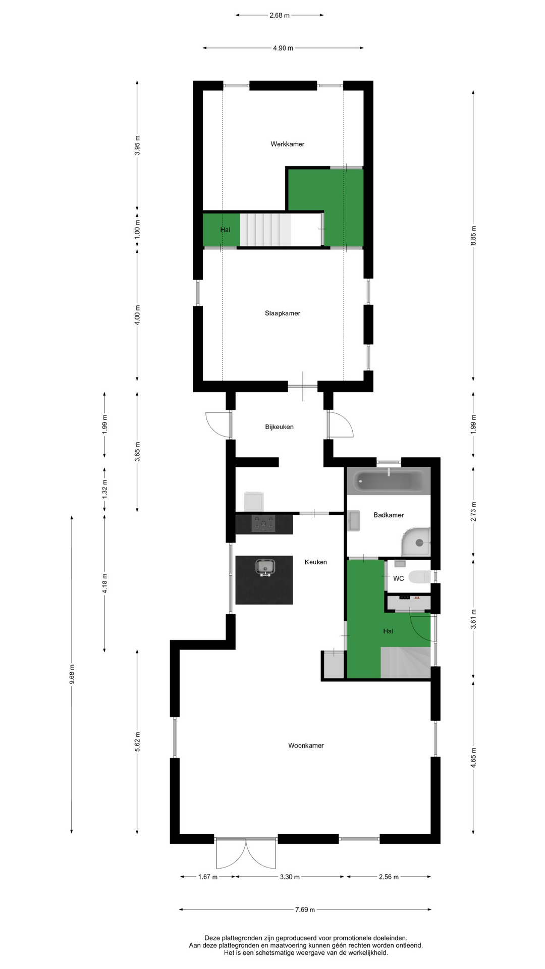
In 2004 is de woning uitgebreid met een moderne uitbouw over twee verdiepingen, wat voor extra ruimte zorgt. De begane grond biedt een ruime, lichte woonkamer met openslaande deuren naar het terras aan de voorzijde, strakke gaskachel, airconditioning en een compleet ingerichte keuken. Deze keuken is een waar kookparadijs, voorzien van een eiland en diverse inbouwapparatuur.
Daarnaast beschikt de begane grond over een luxe badkamer met een duo whirlpool, inloopdouche en wastafelmeubel. De royale slaapkamer op de begane grond, bereikbaar via de bijkeuken, biedt extra comfort voor gelijkvloers wonen.
Een bijzonder kenmerk van deze woning is de ruime praktijkruimte met eigen toegang en toilet. Dit maakt de woning ideaal voor wie een werkplek aan huis zoekt of extra leefruimte wil creëren.
Verdieping en bergruimte
Op de eerste verdieping bevinden zich twee ruime slaapkamers (voorheen drie), waarvan één is uitgerust met een wastafel. Daarnaast is er een praktische inloopkast met CV-opstelling. Via een vaste trap is de zolder van de uitbouw bereikbaar, die volop bergruimte biedt.
Buitengebied en voorzieningen
Het royale perceel biedt tal van mogelijkheden. Naast de voor- en zijtuin is er een ruime achtertuin, perfect voor wie houdt van het buitenleven. De twee paardenstallen, schuur en weide maken deze woning bijzonder geschikt voor liefhebbers van hobbydieren of paardensport. De woning beschikt bovendien over een heerlijke veranda, waar u volop kunt genieten van de rust en ruimte.
Belangrijkste kenmerken:
Volledig geïsoleerd
16 zonnepanelen
Airconditioning
Openslaande deuren naar het terras
Gelijkvloers wonen
Veel lichtinval
Praktijkruimte aan huis met eigen entree
Twee toiletten
Goed onderhouden
Twee paardenstallen
Deze woning combineert gelijkvloers wonen met ruime buitenfaciliteiten en biedt volop mogelijkheden om werken en wonen te combineren. Maak snel een afspraak voor een bezichtiging en ontdek de veelzijdigheid van deze prachtige woning!
Kenmerken
- Status Verkocht
- Prijs € 685.000 k.k.
- Type woning Woonhuis
- Woonoppervlakte 187 m2
- Totaal aantal kamers 5
- Aantal slaapkamers 3
- Aantal badkamers 1
- Badkamer faciliteiten Ligbad, douche, wastafel, inloopdouche
- Inhoud 644 m3
- Perceel oppervlakte 2.510 m2
- Bouwvorm Bestaande bouw
- Daktype Zadeldak
- Verdiepingen 3
- Eigendom type Volle eigendom
- Bestemming huidig Woonruimte
- Huidig gebruik Woonruimte
- Speciale kenmerken Toegankelijk voor ouderen
- Bouwjaar 1979
- Energie label D
- Liggingen Aan rustige weg, vrij uitzicht, buiten bebouwde kom
- Onderhoudswaardering (binnen) Goed
- Aangeboden sinds 2024-09-27
- Aanvaarding In overleg
- Hoofdtuin locatie West
- Hoofdtuin oppervlakte 2.300 m2
- Hoofdtuin type Achtertuin
- Tuin Achtertuin, voortuin, zijtuin
- Quality garden Verzorgd
- Opslag type Vrijstaand hout
- Opslag 31 m2
- Isolatie types Dakisolatie, muurisolatie, vloerisolatie, dubbel glas
- Central heating boiler Ja
- CV ketel brandstof Gas
- CV ketel eigendom Eigendom
- Warm water types Cv ketel, elektrische boiler eigendom
- Voorzieningen Rookkanaal, zonnepanelen
- Garage Garage mogelijk, parkeerplaats
- Parkeergelegenheden Op eigen terrein
De woning in beeld
Plattegrond
Niet gevonden wat je zocht?
Laat ons je helpen en plaats nu gratis een vrijblijvende zoekopdracht.
